【大人系浪漫】
現代風主題設計
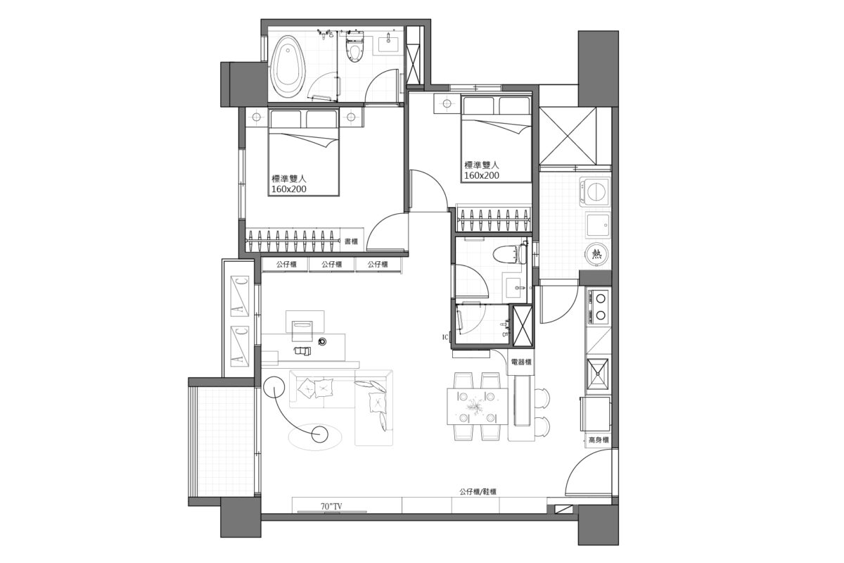
桃園青埔|22坪|新成屋|2房2廳

設計理念:
以屋主的熱愛為尺規
丈量每一寸安放收藏的空間
顛覆「雜亂」與「宅」的既定印象
一個人 × 美少女公仔的生活,也很好

格局設計圖

設計重點

此案屋主為設計師目前負責的一位 A 客戶之同事,兩人年齡相仿,皆任職於同一間電子上市公司,也各自擁有長期投入的收藏嗜好。巧合的是,兩人在半年內先後購入預售屋,並計畫委由 A 客戶熟識的 B 設計團隊進行設計。然而,在 B 團隊評估兩人的居住地點與空間需求後,認為兩人更適合由谷設計團隊負責,於是進一步推薦。

為回應屋主的需求,設計團隊也重新思考收藏在生活中的位置,認為它不應是被隱藏的雜物,而是構成房屋個性的主要角色。設計師透過動線與展示方式的安排,妥善陳列屋主大量的美少女公仔,同時維持空間的清爽與呼吸感,讓收藏自然地出現在住宅的每一個角落,希望能顛覆外界對「宅」與「雜亂」的既定印象。


入門展示收納區

屋主在生活機能與展示需求的比重約為 1:2,因此設計師捨棄傳統玄關設計,直接以公仔做為開場白,讓人一踏入屋內,視線便被左側規模龐大的收藏迎接,感受到屋主對美少女公仔的投入與熱情,猶如走進一座專屬的小型展覽空間。

配合建築的柱子位置,靠近大門的展示櫃以淺櫃為主,並結合中空平台與收納櫃配置,方便存放口罩、帳單、鑰匙等零碎小物,下方則做為外出鞋的臨時擺放區,讓回家與出門的動線更加順暢。在有限的入門尺度中,同時滿足展示、收納與日常使用需求。


展示櫃

接著往客廳方向前進,此區的展示櫃以較深的櫃體組成,以因應收藏數量與尺寸的多樣性,也在餐桌旁形成一道陪伴用餐的美好風景。

展示櫃使用可調式層板設計,能隨著未來收藏的更新進行彈性調整。最下層的抽屜門板特別以木質跳色處理,避免深色櫃體帶來的視覺壓迫。雖然屋主對深色調的偏好極高,甚至在挑選板材時,希望顏色再深一些,但設計師選擇適度收斂,避免色調過深而失去層次,並透過暖色材質的加入,平衡空間原有的冷冽感,使整體在沉穩之中帶有暖意。

玻璃門片

為了讓收藏呈現如同百貨專櫃般明亮而純粹的視覺效果,設計師選用優白高清玻璃作為展示門片。相較一般清玻璃側看時略帶的微綠色調,優白玻璃擁有更高的通透度,使光線能直接地穿透櫃體,減少欣賞時的干擾。

門片形式亦是本案的重要細節。若採用傳統對開門,玻璃重量將限制門片寬度,容易在正面形成明顯縫隙,影響展示的完整性。因此,淺櫃改採上掀式門片設計,而深櫃則使用滑拉式橫推門,讓正面視覺幾乎不見分割線。這些看似微小的選擇,實際上回應了屋主對展示品質的高度要求,也體現設計師在功能、安全與美感之間的精準拿捏。


客廳

此案為開放式格局,整體以黑、白、灰作為空間主調,形塑理性而沉穩的都會生活感受。在沒有實體隔間的前提下,設計師將橫跨餐廚區與客廳的樑體漆成黑色,使其成為一道低調卻明確的視覺分界,讓不同場域在開放中仍保有各自的屬性與氛圍。

電視牆設計看似簡約,實則透過不規則櫃體排列與異材質門板的搭配,堆疊出層次變化。由於屋主十分在意視聽品質,壁掛電視兩側配置 Sony A9M2 劇院型 Soundbar,提升日常觀影與娛樂的沉浸感。另一方面,考量屋主在書房使用電腦時,偶有將畫面同步輸出至客廳電視的需求,設計師特別於地板中預先埋設一條「貓道」,隱藏長距離 HDMI 線路,整合設備的同時也不干擾視覺。


書房

與客廳相連的書房,延續配色與選材,視覺上具備一致性。做為上市公司的遊戲設計師,屋主具備濃厚的美術背景,書房不只是辦公空間,也是思考與創作的發生地。空間中保留了畫架的位置,讓靈感得以隨時展開,也讓工作與創作在日常中共存。

書桌選擇符合現代使用需求的升降桌,提供長時間使用電腦時更彈性的姿勢調整。為延伸整體音場表現,A9M2 的後置喇叭放置於書桌兩側,使優質的聲音體驗從客廳一路串聯至工作區域。後方規劃次要展示櫃,採用清玻璃對開門設計,下方則以整排儲物櫃集中收納生活用品。

畫架

畫架低調地暗示屋主的身分,放置於書桌一側,方便屋主在工作途中,快速紀錄一閃而過的靈感,也是休息時療癒身心的安靜角落。


餐廚區

設計師保留建商原本規劃的冰箱位置,並在既有條件上進一步優化配置,透過細緻調整善用周邊畸零空間,讓原本零散的角落轉化為有秩序的收納系統,也使視覺更清爽俐落。

在冰箱上方與右側的空間增設吊櫃與窄型側拉置物架,集中收納乾貨與備品,減少檯面堆積、提高收納效率,讓動線保持維持順暢。

中島

建商原本規劃的中島體量較大,同時肩負餐桌功能,但在實際生活中顯得笨重。於是設計師將其往冰箱方向推移,釋放出餐桌擺放的空間。擴大備料區與用餐區的空間,使用上也更有餘裕。

考量預算與實用性,設計師保留既有中島檯面,並由人造石師傅於現場裁切、修飾後重新運用於新的中島。中島下方機能由左至右依序規劃為轉向開放櫃,使過道空間亦具展示效果,接續配置側拉置物架、電鍋托盤,以及可放置微波爐或小烤箱的設備空間。上方另加裝金屬吊架,結合輔助照明、杯具吊掛與綠植擺放,讓中島在實用之外,也成為空間氛圍的重要組成。

曲面牆

牆面搭配石頭顆粒塗料,為空間增添細節。曲面的設計柔化了餐廚區原本筆直而銳利的線條,使場域在理性中多了一份流動感。圓弧的後方隱藏著設計師巧妙規劃的電器櫃,串連了中島下方的機能配置,提升屋主料理的便利性。


主臥室

主臥室延續都會男子的簡約語彙,收斂裝飾,讓空間回歸休息的本質,以低調的姿態成為一處讓生活節奏慢下來的場域。灰白色的牆面營造出安定、內斂的氛圍,使人在回到房間時,能從繁忙中抽離,回到屬於自己的靜謐狀態。

考量整體預算配置將重心放在公共空間,臥室設計以實用為主,於床頭兩側配置溫暖的閱讀燈,滿足夜間閱讀需求。衣櫃則因應屋主的收藏習慣特別調整配置,預留一列作為展示空間,讓美少女公仔在私領域中持續陪伴日常。全室的展示櫃燈光配置經過精心規劃,燈條安置於櫃體偏中、靠近前方的位置,使光線能直接照亮公仔的正面細節,有效避免背光造成的陰影,確保每件收藏品都能以最清晰、完整的姿態呈現。


最後我們就來總結一下!!

本案在回應屋主大量收藏展示需求的同時,並未犧牲空間應有的秩序與美感,而是以理性的機能配置為基礎,透過比例、材質與動線的細緻拿捏,讓收藏成為生活的一部分。在這個家,展示與收納、日常與興趣彼此並行,毫無保留地呈現屋主對收藏的的熱情與投入。

如果我們的分享對你有幫助的話,歡迎追蹤我們的Facebook、Instagram,並按讚、分享給朋友喔!也可以點擊下方連結,看更多我們的作品!

本案為谷設計空間製作所「主題宅」設計方法的代表作品之一。

你是否喜歡這篇主題呢?

對此篇文章有興趣的話,歡迎預約諮詢,之後也會和大家分享更多有趣的內容!