
【工業運動宅】
設計理念:
工業風運動主題宅
新北板橋|12坪|新成屋|3房2廳
善用夾層設計
滿足公仔與露營收納需求
並結合多功能運動設置
小宅也能充滿生活樂趣

設計重點
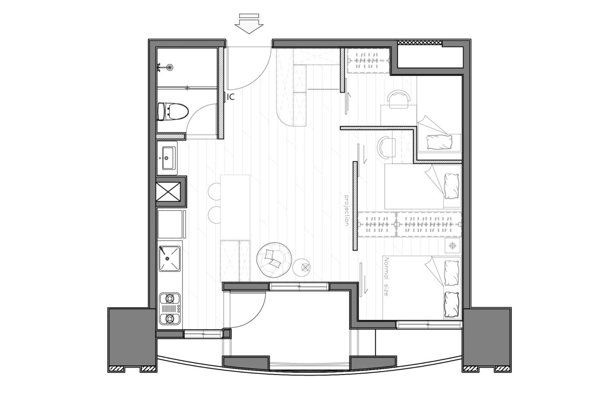
此案是一個小而溫馨的工業風住宅,實坪約為 12 坪,住著熱愛運動與露營的四口之家,屋主的核心需求主要有三項:其一,大量公仔收藏的展示;其二,希望將運動設施整合進日常生活場域;其三,由於一家人每月固定露營一次,帳篷與各式裝備體積龐大,收納規劃成為關鍵課題。因此,在有限空間中,要同時滿足居住機能、運動愛好與家庭娛樂,是本案最重要的目標。
由於空間精巧,且需劃分主臥室、男孩房與女孩房三間獨立房間,設計策略並未著重於私領域的複雜安排,而是將重心放在公領域的整合與放大。設計師保留原始結構,不施作天花板包覆,使管線與樑體自然外露,奠定率性的工業風基礎。同時將 TRX、空中瑜伽、單槓與飛鏢靶融入公共空間,形塑出力量感十足的「工業運動宅」。


入口處
走進家門,設計師利用兩側櫃體與牆面的配置,形成一條過渡的小通道,自動劃分玄關空間。並運用淺色門片搭配溫潤的特殊漆牆面,讓入口處保持輕盈通透的感受。
左側鞋櫃收納一家四口的日常鞋履,中空平台則成為展示與隨手置放的彈性區域,可擺放公仔收藏,或放置鑰匙、口罩等外出必備小物,櫃體下方不落地,留有空間擺放常穿鞋款,提升進出門的便利性。右側灰鏡兼具穿衣鏡功能,出門前可快速整理儀容,也透過鏡面反射放大視覺尺度。巧妙的安排使得玄關在有限坪數中仍保有清晰動線。

洗手台
沿著玄關的特殊漆牆面往前走,右側是浴室外移的洗手台。牆面維持相同的特殊漆,形成連貫的視覺感受,鏡子與檯面則選擇較深的灰色,增加空間層次。即便只是洗手、整理儀容的片刻,也十分講究。
原本建商配置的面盆組樣式簡單且和牆壁之間有縫隙,設計師建議換成符合整體風格的檯面與盆體設計,並改為鏡櫃形式,提升盥洗用品的收納容量。檯面兩側向牆壁延伸,創造出更多平整的置物區,可擺放洗手乳與保養品,使檯面維持清爽有序,同時兼顧美觀與實用。

廚房
原先的廚房是封閉式格局,隔間牆自洗手台旁一路延伸,將烹飪區完整區隔,形成一個獨立空間。因為戶型小,設計師選擇拆除牆體,讓光線與視線重新流動。而原本隔間牆與柱體交接的界面,則以簡潔的特殊漆延續鋪陳,使其與既有磁磚自然銜接。
開放後的廚房,視覺更加通透、動線也更為流暢。設計師在原本牆體的地方設置中島,讓烹飪與家人互動能同步進行。並貼上仿磚壁紙,營造紅磚牆的視覺效果,以更經濟的方式完成風格塑造。

中島
由於空間有限,無法擺放傳統餐桌,設計師以中島取而代之,提供日常用餐、備餐與臨時工作的平台功能。上方設置吊架,並將安裝燈條,形成一處專屬的用餐與交流角落。
這裡還有一段有趣的插曲。原先吊架位置較低,但男主人希望站立時視線不被遮擋,於是將其上移。調整後留下的舊鎖點恰巧落在仿磚壁紙上,不易修補。設計師靈機一動之下,選用三個水龍頭把手造型的掛鉤覆蓋舊孔位,也可吊掛毛巾或小物,意外成為兼具裝飾與實用的細節。

雙向櫃
紅磚牆除了營造氛圍外,本身也是一個雙向櫃,面向廚房的一側規劃為電器櫃與零食櫃,收納小家電與食品;另一側面向客廳,增加額外收納容量。透過雙向利用,同一座櫃體承載兩種機能,提升坪效,也讓收納更加集中有序。

夾層
由於整體坪數有限,設計師將思考向上延伸,替空間創造垂直發展的可能,善用天花高度規劃鋼構夾層,讓小宅在水平之外多了一層立體維度。為了避免結構顯得單調,設計師特意加入一支斜向鋼構件,營造出如同美式斜屋頂般的意象,使交錯的線條中產生趣味與動態感。除此之外,另一個亮點是將消防灑水管漆上活潑的亮橘色,與工業風常見的灰階配色形成反差,成為風格亮點。
男主人是個收集狂,喜歡收藏從小到大看過的卡通、電影掛件與玩具。夾層延伸出來的平台剛好能滿足他的收納需求,使收藏品集中陳列、整齊有序。

客廳
客廳的配置帶有高度彈性及有機感,沒有制式沙發與電視櫃,取而代之的是結合屋主露營興趣的露營椅與投影機,保留充裕的活動空間。設計師保留一面素淨牆面作為投影牆,當燈光轉暗,畫面投射其上,客廳彷彿瞬間轉換成小型影院,坐在露營椅上觀影,氛圍自在而輕鬆。
除了觀影功能,客廳亦是一座多功能遊樂場。可以做 TRX、空中瑜伽、拉單槓和射飛鏢,讓家庭成員在日常生活中融入多樣活動。運動與休憩並存,使客廳成為充滿能量與互動的核心空間。



TRX & 空瑜 & 單槓 & 飛鏢
天花板上方裝設了可以承重的吊掛系統,可懸掛空中瑜伽布幔,亦可以轉換成懸掛式 TRX 訓練設備;鋼構件上固定了可供拉單槓的設備;牆側則設置飛鏢盤,滿足屋主多元的運動形式,不必出門,也能隨時展開訓練。
談到飛鏢,就不得不提男主人是來自台灣唯一專門製作飛鏢與飛鏢設備公司的主管,產品甚至達到國際賽事等級。本人也極為熱愛射鏢。初次見面時,他親自示範,幾乎發發命中紅心,實力驚人。

磁吸琺瑯板 & 露營風休憩區
雙向櫃另一側設置磁吸琺瑯板,既是黑板,也是展示面。孩子可以在此塗鴉,大人能留下備忘訊息,日常互動在牆上留下痕跡。轉角處則擺放露營折疊椅、露營桌與 LED 油燈,將戶外興趣帶入室內,彷彿是家的小小營地。

臥室
此案共有三間臥室,照片由左至右依序為角落的男孩房、中間的女孩房,以及位於邊角,唯一有對外窗的主臥室。三個房間皆在有限坪數下,各自保有獨立性。
其中主臥室在放下一張雙人床後,空間幾乎已達飽和。當初設計師曾提過高低差的設計方案來優化空間,並藉由地坪層次整合收納,但受限於預算,最後維持目前的格局。


儲藏室
男孩房外的角落畸零空間原本難以有效利用,且布幔後方隱藏著電箱位置。設計師選擇以柔性的布幔作為遮蔽,並將此區規劃為儲藏室使用。布幔的處理讓空間保有彈性,也避免了實牆帶來的壓迫感,使零碎角落轉化為實用收納區。
雙向櫃則作為隔間界定,取代傳統制式牆體,在劃分場域的同時也提高坪效利用。鋼構夾層上方另保留約 45 公分高的儲物空間,形成完整的隱藏式收納區,可透過折疊梯或繩索上樓取物,專門擺放不常使用的大型物件,使小坪數住宅在垂直向度上發揮最大效益。
最後我們就來總結一下!!
這是一個整體坪數 12 坪、總預算 80 萬的住宅,卻成功整合三房格局,同時滿足遊樂、運動與高效收納。設計師在有限條件下透過垂直延伸與多功能收納策略,展現出極高的空間效率。每一寸坪數都經過精準思考,讓生活不因尺度而妥協,反而更顯集中而有力量。
如果我們的分享對你有幫助的話,歡迎追蹤我們的Facebook、Instagram,並按讚、分享給朋友喔!也可以點擊下方連結,看更多我們的作品!
本案為谷設計空間製作所「主題宅」設計方法的代表作品之一。
你是否喜歡這篇主題呢?